TrainWeb.org Facebook Page
Type A Spreaders Early Machines
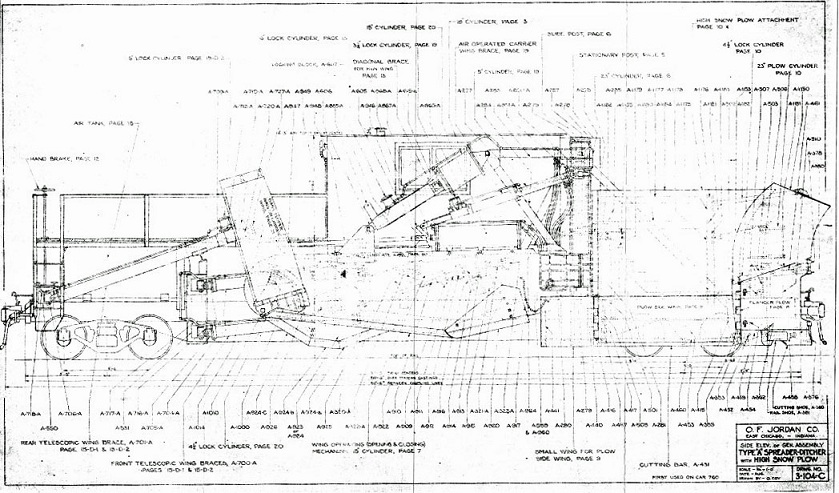
Type A Spreaders


In approximately 1929 Jordan introduced the Type A Spreader. Until the Type J was introduced, the Type A was Jordan's largest Spreader. The Type A used a longer frame, larger wings and was all around bigger then the medium Standard line or small Knuckle Braced line. Jordan marketed this as a spreader for use on railroads with larger right of ways. One of the main noticeable things on the Type A that sets it apart is the large diagonal braces mounted on A frames, instead of just a single diagonal brace mounted directly to the vertical post. All Type A spreaders were built with the center cab, later (post 1955) ones had the front cab. All Type As also had a Rear Deck, except for one photo from John C. LaRue Jr. in which it has no deck. It may be possible this is the prototype Type A. All Type A Spreaders were pneumatic also, like previous models. The Type A vertical posts also differed from Standard models as they were cylindrical instead of a more square type one. Type A spreaders were also the first to use a retractable ditch casting. These mounted in a frame in the wing, and were lowered or raised by an air powered motor connected to an archimedes screw.


Here is a very early Type A, Possibly the protoype. From the John C. LaRue Jr. Collection


Early Type A Spreaders
The early model Type A spreaders had some noticeable features compared to the later model ones. Early Type A spreaders featured the main cylinders that open and close the wings mounted in the very front of the vertical posts, mounted on top of another. Another early feature of these was the diagonal brace. These early ones were more of a "yoke" style one. The air cylinder was attached to a Y type brace, with a tube then attached to that. Inside the tube was the rod that raised and lowered the end of the wing. On the top of the exterior tube was an air lock. These Spreaders also featured new blades. First off was a front blade of medium height which was reversible so ballast and or snow can be plowed to one side only at a time. The high snowplow attachment went up a few more feet higher but also had the reversible plow bottom. The side plates of the snowplows on early model Type As featured riveted construction and had no journal access doors. The Carry Wing brace on early model Type A spreaders used a large framework in the front section. This used a very large brace that hung over the side. It seems as if this brace would often get in the way of ditching and many machines had this removed. Early Type A's used a small air cylinder and a cable to raise and lower the bank sloper. Another option on some Type A spreaders were hydraulic brace locks. The fluid pressure came from an air driven ram type pump. More on this style of lock is explained on the "parts" page.


An earlier Type A, Possibly an ex GN unit as they added to their cabs. Len Murray Photo

Later Model Type A Spreaders
One major change to later Type A's was that the cylinders used to open and close the wings now were mounted behind the wings, much like the Standard Models. Some of these still had the " Yoke" style diagonal brace though. Later Type A's had an upgraded diagonal brace with square tube construction, also much like the Standard line. More upgraded features are a new Carry Wing brace, this time mounted directly off the vertical post, once again much like a Standard model. The sides of the snowplows were also updated with welded construction and now had journal access doors. Even later model Type A's had the Front Cab, with all around visibility, and also some received compressors on the back rear deck. Late model Type A's also used a larger air cylinder and a solid rod to raise or lower the bank sloper, vs. the early style that used a cable. In 1955, the front cab was introduced, and all Type A machinces after that featured this cab. The Type A was offered sequentially through the 1960's with the Type J and Road Master machines until the line was dropped in the mid 1960's.


A Jordan drawing of a typical 3-175 Spreader.


SPMW 4037, a straight wing unit. SP added the extended rear decking. 4037 is now CORP MoW #3. From the collection of John C. LaRue Jr.


Standard Options
The Type A Spreader had many of the same options as previous models. These include the Ditch Casting. These could be custom made for each railroad and were mounted in the wing, the difference being that on the Type A it was mounted inside the wing, and was retractable. Wings could be either the straight, or the articulated ones, depending on which the railroad wanted. The original braces that held the wings open were the Hydraulic kind, until the later style came along that were used on the Standard series. Wing braces are described more on the parts page. As with other spreaders, nose blades were also an option, with several different styles available.

More Type A photo's on the Photo Page