TrainWeb.org Facebook Page
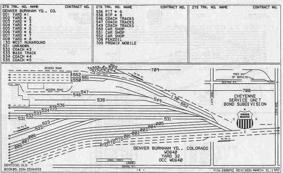
Burnham