TrainWeb.org Facebook Page
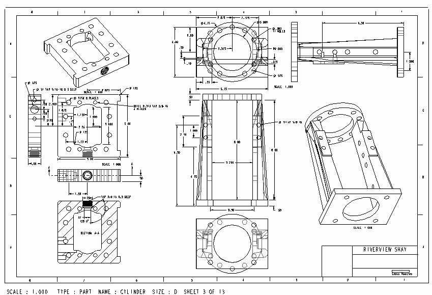
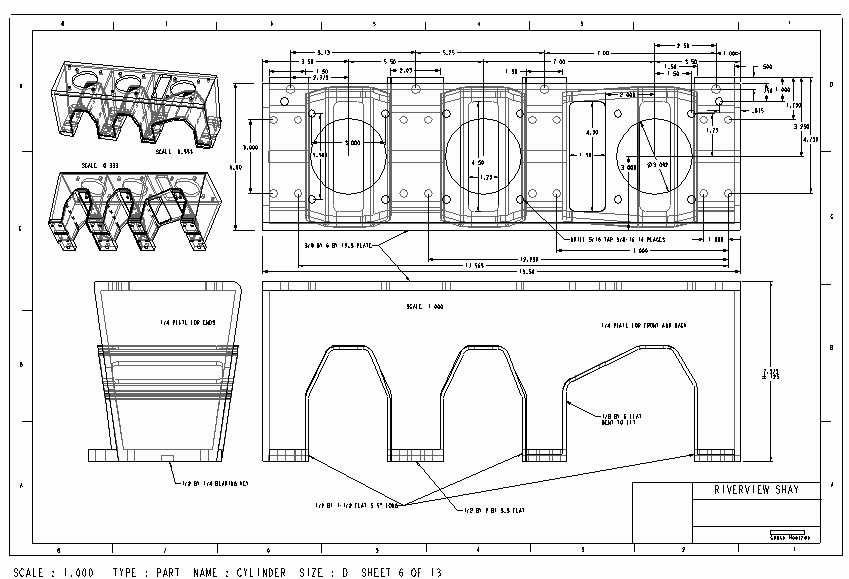
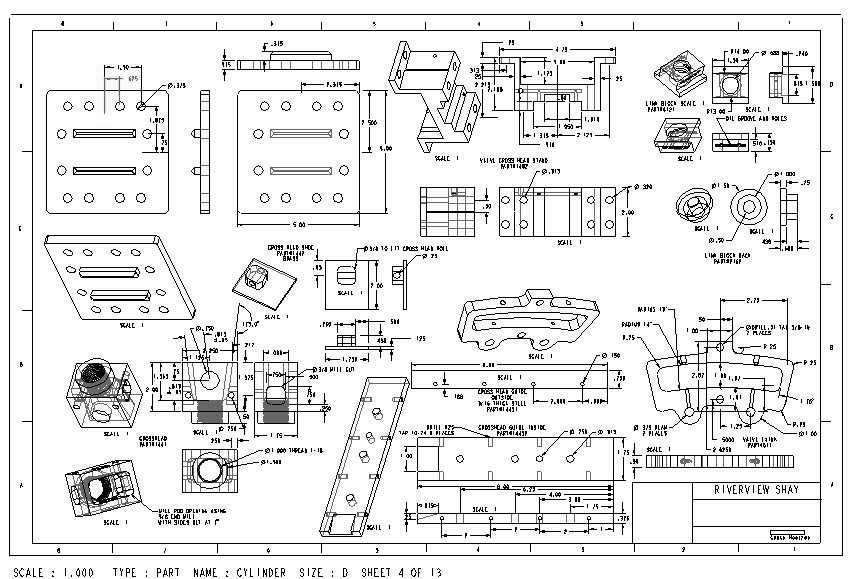
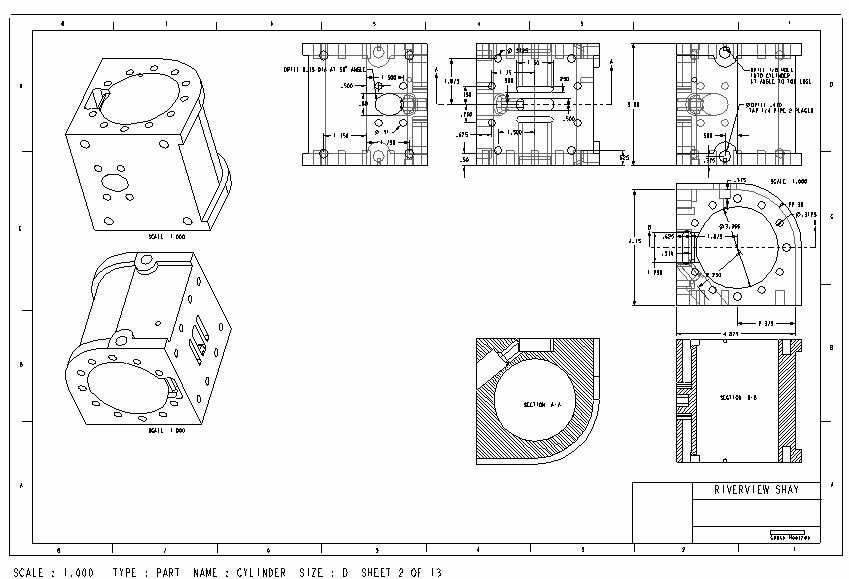
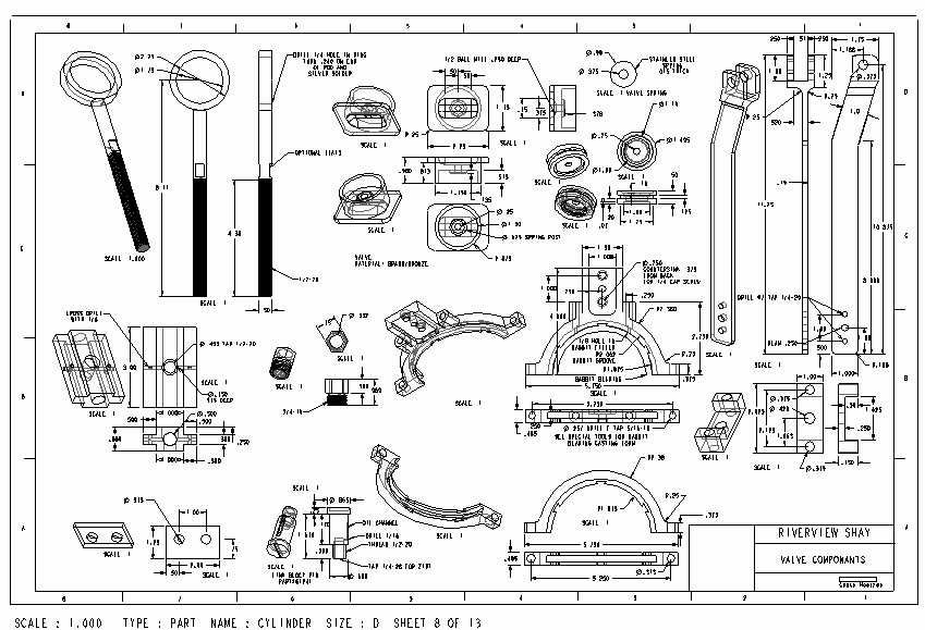
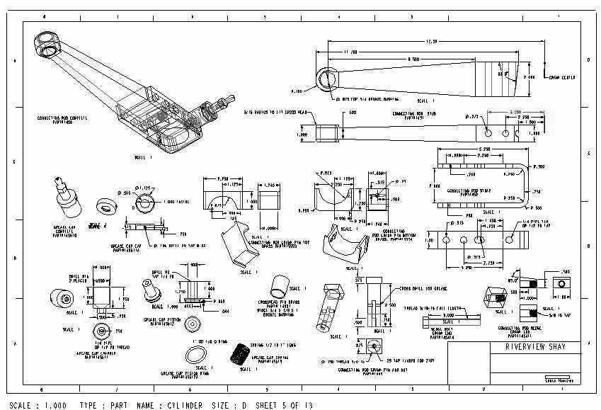
Shay Engine drawings