TrainWeb.org Facebook Page
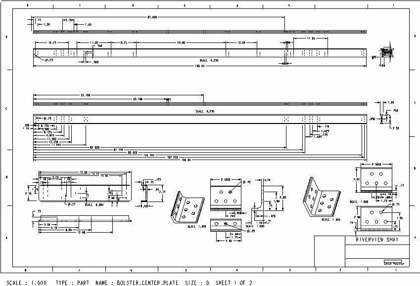
Shay frame CAD drawings