TrainWeb.org Facebook Page
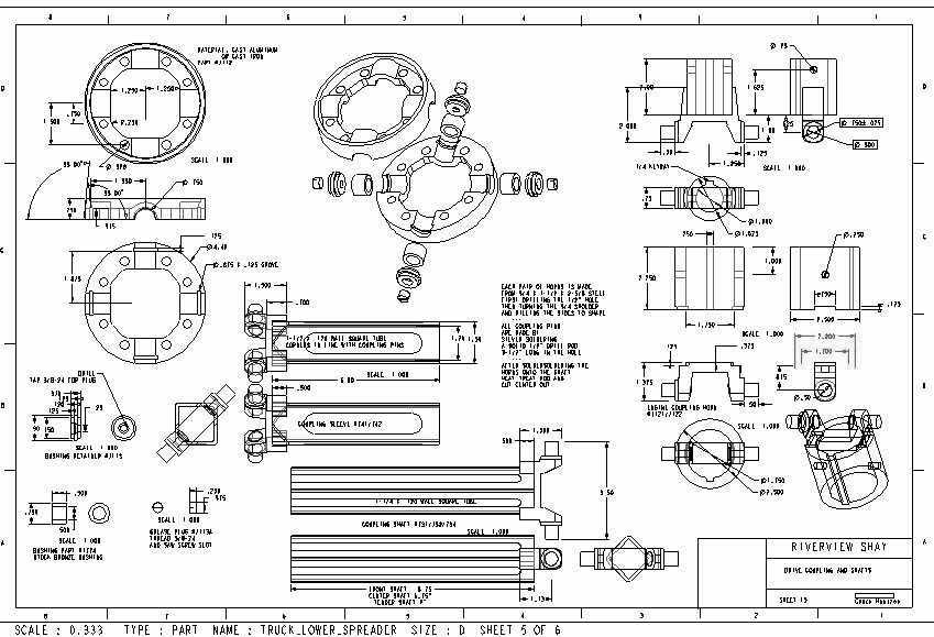
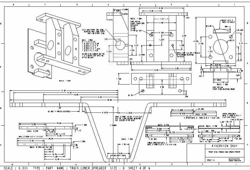
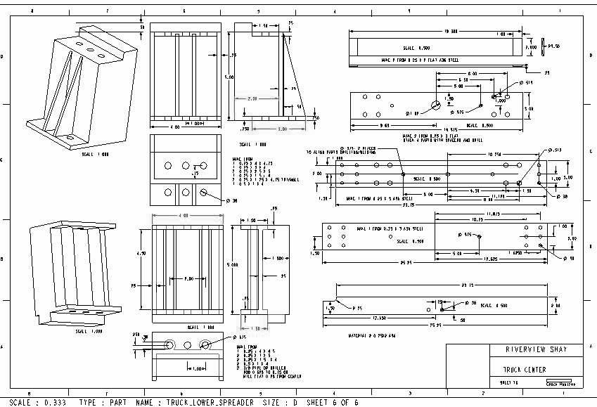
Shay Truck CAD drawings