TrainWeb.org Facebook Page
How to Build Model... This is the TABLE OF CONTENTS is from a book by Burton K Davis called “How to build model railroads and equipment”. It was published by Crown Publishers of  N.Y. in 1956. The Library of Congress catalog number is 56-7197.  This book is not currently available for sale.  I got a copy from my local library.  In addition to the figures included in this web page, the book also contains instructions and tips on how to build models of the equipment. Click on the text to see to graphics. Most of the scans are 200 dpi(dots per inch), most printers are 300 or better, most computer screens are about 75, in other works these things should look great when printed. Only the hypertext (blue underlined text) has a corresponding scan.  I suggest you save the GIF files (use the right mouse button, an choose "Save image as..") to your hard drive, then use VuePrint or a similar graphics program, to print them.
 
TABLE OF CONTENTS

Preface
Railroading for Model Builders
Boxcar (second fig)
Gondola (second fig)
N and W Hopper Car (second fig)
Quad Hopper
Tank Car (second fig)
Southern Pacific Wooden Caboose (second fig)
Bay Window Caboose (second fig)
"Little Gem" Wooden Daycoach.
Maintenance of Way Headquarters Car
Cincinnati Northern Combine
"Cascade" Office Car
Streamlined Passenger Cars
Old-Time Passenger Depot
Small Passenger Station and Flag Stop Station (second fig)
Southern Pacific Ten-Wheeler
Railroad Drawbridge (second fig)
Wood Trestle (second fig)
Twin Dock Coaling Station (second fig)
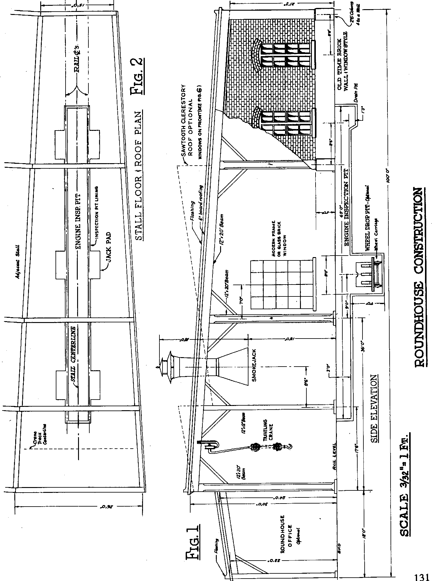
Roundhouse (second fig) and Turntable
Fairbanks Morse Diesel Passenger Locomotive
Burro Crane
Wooden Water Tanks
Industrial Water Tank
Water Column
Old-Time Stiff-Leg Derrick
High-Voltage Transmission Pole
Basement Corner Layout
Two-Pikes-In-One
Through and Deck Plate Girder Bridges (Text)
Crossing Gate and Tower
Old-Time Train Order Signal
Tunnel Portals
Bridge Warning
Interlocking Tower
Color Light Signal  (second fig)
Wig-Wag Grade Crossing Signal

Return to S-Trains