TrainWeb.org Facebook Page
Extended Rigid Type S Scale Draft Gear Box

Extended Rigid Type

S Scale Draft Gear Box

(For Sergent Engineering Couplers)

.

Where there is a need, there should be a model or detail part to fill it.  And while comparing my S-Helper Service
cabooses to prototype photos, I found this need.

.

Model Photos

Prototype Photos

           

 

No resemblance.

.

Note how far the coupler and draft gear extend out past the walk decks of this caboose in the prototype
photos?  The model's couplers nor it's gear boxes are extended.  I wanted to achieve this look and to
offer both a working an non-working version of the draft gear.

Below is the concept for the NON-working, rigid version.

.

CURRENT  DESIGN

Updated : 12 / 29 / 2013

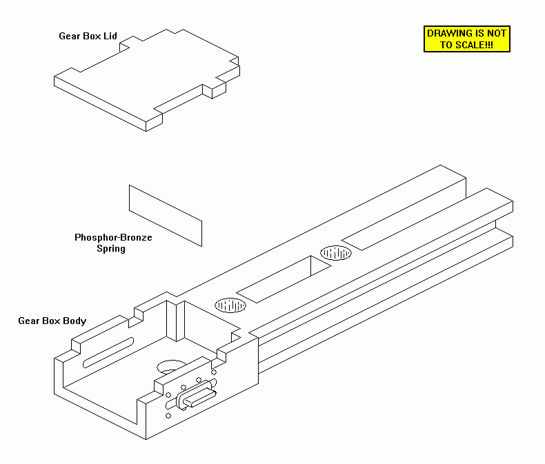
Exploded Parts Drawing
2-D drawing showing parts of gear box
( Main Box and Main Box Lid not shown )

Exploded Parts Drawing (Color Coded)
Same as above with parts colored
( Main Box and Main Box Lid not shown )

Assembly Drawing
2-D drawing showing assembled gear box
( Main Box and Main Box Lid not shown )

Assembly Drawing Color Coded
Same as above with parts colored
( Main Box and Main Box Lid not shown )

Design Diagram
Various views of parts and assembly and comparison to the SHS gear box

.

More on this project soon!

.

.

Back To S Scale Modeling Projects Page

.

.

.

.

.

.

.

.

.

.

.

.

.

.

.

.

.

.

.

.

.