TrainWeb.org Facebook Page
CHOIRB01

RETURN TO INDEX

RETURN TO FRONT PAGE

 

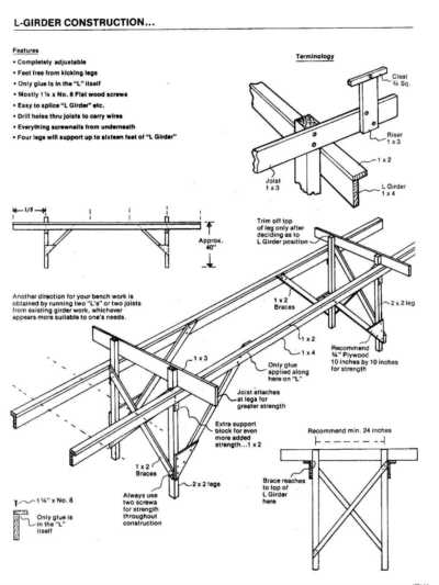
STR RAILROAD L-GIRDER CONSTRUCTION

Basic Support System - Using Preferred Spline System

Bill Ackland MMR

RETURN TO TOP