TrainWeb.org Facebook Page
CHOIRB01

RETURN TO INDEX

RETURN TO FRONT PAGE

 

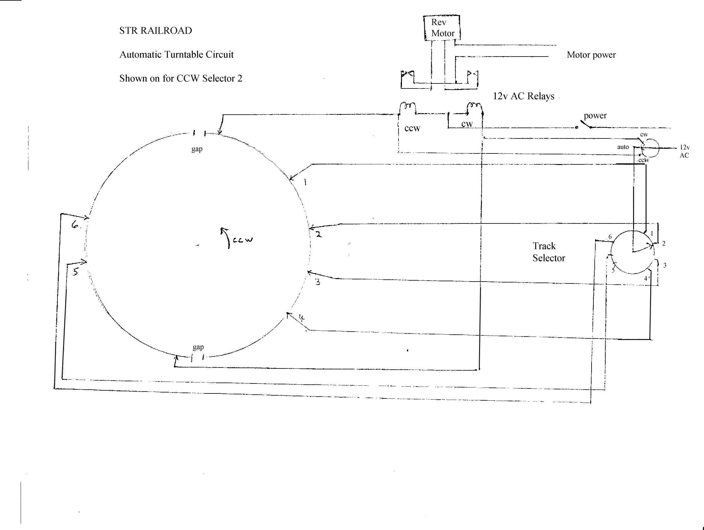
STR TURNTABLE MECHANISM

Parts and wiring for custom turntable

Bill Ackland MMR

RETURN TO TOP