TrainWeb.org Facebook Page
Water_towers.html
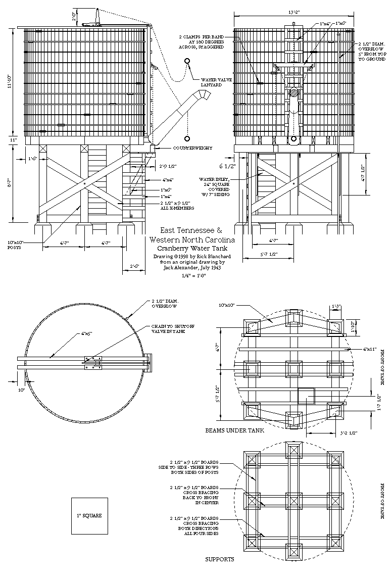
Water Towers