TrainWeb.org Facebook Page
CTN Photo Tour


Canton Railroad
Modern day photo tour

Accompanying each photo below are:

Click a photo to see a larger view. Please send your comments and corrections to Steve.


<< Previous (west) | THIS PAGE: Canton east | End of tour || main index

Aerial 1953
Photo courtesy Johns Hopkins University

Aerial 1953
Mile: Date: Feb 1953
Ease: View: N (up)
Area: HCR:
Map: Ba 44 A 2 (center) Topographic Maps

Let us resume once again near the center of Canton Railroad's (CTN's) K-shaped trackage, which is at bottom center of this photo. This page follows the upper right segment of the K through 1953's bubble wrap of petroleum tanks and beyond. CTN's is the line that runs vertically through the center, then snakes east (right) at photo top.

The horizontal roads: at bottom Holabird Avenue, at middle through the tank field Boston Street, at top Eastern Avenue.


Zoom North

Zoom North
Mile: 0.5 Date: Jul 2016
Ease: A View: N
Area: B- HCR:
Map: Ba 44 A 3 Topographic Maps

From out of the shadow of interstate highways over Holabird Avenue, instead of bending left as seen on the prior tour page, CTN trains can also continue straight, past a B&O style dwarf CPL signal, here showing the red lights of stop. Beyond a pair of track diamonds, railcars are being switched by CTN.


Penn Mary Yard Junction

Penn Mary Yard Junction
Mile: 0.5 Date: Nov 2016
Ease: A- View: S
Area: B- HCR:
Map: Ba 44 A 3 Topographic Maps

The reverse view finds another dwarf CPL, as well as the same track diamonds seen earlier. Let's get a closer look at them.

Link: 2014


Diamonds

Diamonds
Mile: 0.5 Date: Nov 2016
Ease: A- View: N (up)
Area: B- HCR:
Map: Ba 44 A 3 Topographic Maps

CTN crosses double trackage here, CSX's route to Sparrows Point. The orange joint blocks, made of nylon, electrically insulate CSX's tracks from those of CTN, something necessary for proper signal control.

The link below is of 16th Street Tower near track diamonds. Had the tower stood here? I have not found confirming evidence, furthermore this had been 15th Street.

Link: 16th Street Tower


ex-Fifteenth Street

ex-Fifteenth Street
Mile: 0.5 Date: Nov 2016
Ease: A- View: N
Area: B- HCR:
Map: Ba 44 A 3 Topographic Maps

CTN heads north along what had been been Fifteenth Street. The first train here had been that of a Baltimore streetcar line. The perpendicular, silver automobile is at the Boston Street grade crossing, one of CTN's two in this vicinity, and the dark-windowed bus beyond is riding O'Donnell Street. An atlas says O'Donnell Street was Canton RR's northern limit before roughly 1910.

The track that runs off the photo's right edge had led to Lever Brothers, one of CTN's best customers during the 20th century.


Map 1948
Image courtesy Johns Hopkins University

Map 1948
Mile: Date: 1948
Ease: View: N (up)
Area: HCR:
Map: Ba 44 B 4 (center) Topographic Maps

B&O also served Lever Brothers, as indicated by the alternating blue (B&O) and orange (CTN) lines near number 444. This tour page heads north from 124 to 178 and beyond.


Lever Bros Site

Lever Bros Site
Mile: 0.5 Date: Aug 2017
Ease: A View: E
Area: B HCR: 64-F, 83, 91
Map: Ba 44 A 3 Topographic Maps

Beyond the Peterbilt sign, a new Amazon facility is taking the place of Lever Brothers. CTN's track at left had led to multiple sidings at that soap factory.

Link: Lever Brothers on Holabird


CTN 1201
Photo credit HH Harwood

CTN 1201
Mile: 0.8 Date: May 1989
Ease: A View: NE
Area: B- HCR: 87
Map: Ba 44 A 2 Topographic Maps

The crewmember at right is about to flip a track switch for CTN 1201 at the Boston Street grade crossing. During the 21st century, residential units have taken the place of industrial ones, leading to automobile traffic jams along this stretch.

The building behind the switcher, at the northwest corner of Boston and Ponca Streets, had bottled Dr. Pepper before being used in a movie, as described below.


Ponca Street
Screen capture (fair use)

Ponca Street
Mile: 1.0 Date: 1998
Ease: View: S
Area: HCR:
Map: Ba 44 A 2 Topographic Maps

The boxy Dr. Pepper building at top center is featured in the film Enemy of the State. This view looks reverse-to-tour with Ponca Street on the left and a CTN train parallel it on the right. CTN does not normally haul coal hoppers along this route, and I've never heard this area called the South Baltimore Industrial Complex anywhere else.


Boom
Screen capture (fair use)

Boom
Mile: 1.0 Date: 1998
Ease: View: S
Area: HCR:
Map: Ba 44 A 2 Topographic Maps

The first take was the only take for the building's final movie appearance. This is not a spolier because everyone knows in advance that action movies have pyrotechnics. You still have to watch to find out the how, why, and when.

I've read the explosion was actually carried out rather than simulated or created via CGI, however I suspect the northbound CTN train at right was filmed separately and pasted in later.

Link: movie's IMDB entry


CTN 1906
Photo courtesy Dave Hiteshew

CTN 1906
Mile: 0.9 Date: 2021
Ease: A View: N
Area: B- HCR:
Map: Ba 44 A 2 Topographic Maps

At roughly the same location 30 years later, Dr. Pepper is still available, but it's sold by a Royal Farms store. Note there is another Royal Farms store about 1000 feet north along O'Donnell Street.


To O'Donnell

To O'Donnell
Mile: 0.9 Date: May 2023
Ease: A View: N
Area: B- HCR:
Map: Ba 44 A 2 Topographic Maps

CTN customers between Boston and O'Donnell Streets in 1970 included S. Schapiro & Sons, Inc. and Markakis Company.


Signal

Signal
Mile: 1.1 Date: Mar 2023
Ease: A- View: SW
Area: C+ HCR:
Map: Ba 44 A 1 Topographic Maps

CTN's signal hardware is similar to Western Maryland Railway's (WM's), however CTN uses double red to indicate stop. A 1916 map labels this area near O'Donnell Street "Shoresville".

Link: 2020


WM Style

WM Style
Mile: 1.1 Date: Mar 2023
Ease: A View: NE
Area: C+ HCR:
Map: Ba 44 A 1 Topographic Maps

The discarded concrete block base of the prior signal also matches those WM had used.

CTN curves east here to cross under Ponca Street and I-895. Ponca Street's prior name was 16th Street. A 1910 map does not show tracks here, but a 1922 map does, so CTN's route northeast from this spot dates to between those years. A 1919 map shows dashed lines (construction) for CTN.


Steel Crosstie

Steel Crosstie
Mile: 1.4 Date: Mar 2023
Ease: B+ View: W
Area: C+ HCR: 88
Map: Ba 44 A 1 Topographic Maps

Manufacturer Narstco says their steel ties last longer than wood and concrete ties. Those along this stretch are the only steel ties I've seen in the region.


Map 1916

Map 1916
Mile: Date: 1916
Ease: View: N (up)
Area: HCR:
Map: Ba 36 E 12 Topographic Maps

This 1916 map depicts a CTN plan that would have taken it east from O'Donnell Street at Shoresville (bottom left) then north to the Philadelphia, Baltimore & Wilmington RR (PB&W), now NS and Amtrak, near North Point Road. At map time, CTN had thoughts of continining north to Towson to meet the Maryland & Pennsylvania RR. Aerial photos confirm that CTN did not reach the PB&W but instead turned east and followed the dashed blue line of an outfall sewer. Outfall sewers transport treated wastewater to a discharge point.

The red lines and shading mark various proposed boundaries for an expanded Baltimore city. In 1918 the city line was moved east to a compromise location about where PB&W meets North Point Road.


Gusryan Street

Gusryan Street
Mile: 2.0 Date: Mar 2023
Ease: A View: W
Area: B- HCR:
Map: Ba 44 C 1 Topographic Maps

A single red suffices at Gusryan Street's grade crossing. Sidings in the distance had served Porcelain Enamel and Manufacturing Company.


Dundalk Avenue

Dundalk Avenue
Mile: 2.1 Date: Jul 2016
Ease: A View: NW
Area: B HCR: 64-G
Map: Ba 44 C 1 Topographic Maps

A private siding on the right had led to Chesapeake Shoe Manufacturing, Columbia Specialty Company, and Gray Concrete Pipe Company as of 1970.


Aerial 1953 Dundalk
Photo courtesy Johns Hopkins University

Aerial 1953 Dundalk
Mile: Date: Feb 1953
Ease: View: N (up)
Area: HCR:
Map: Ba 36 D 13 Topographic Maps

CTN emerges at bottom left to cross Gusryan and Dundalk, then turns upward to cut a / diagonal. The dark clockwise curl near the bottom is the aforementioned siding to the shoe and pipe companies.

Eastern Avenue is the bright white stripe across center; above it, a spur curls counterclockwise. As of 1970, that spur served Dance Oil Company and Crosse & Blackwell, Inc. It would prove troublesome when I-95 pushed through...


Aerial 1988
Photo courtesy Johns Hopkins University

Aerial 1988
Mile: Date: 1988
Ease: View: N (up)
Area: HCR:
Map: Ba 36 D 13 Topographic Maps

That spur crossed where I-95's Eastern Avenue interchange needed to go, so during the mid-1980s the spur was moved south and given its own 400-foot long bridge on a new alignment of 1700 feet. It is the dark line crossing I-95's bright pavement at bottom right in this view of the same area 35 years later.


Spur Bridge

Spur Bridge
Mile: 2.2, spur 0.2 Date: Feb 2004
Ease: A View: NE
Area: B HCR: 64-E
Map: Ba 44 D 1 Topographic Maps

The rerouted spur saw use for only about 15 years until customer Martin Gillet closed in 2000. The disused spur bridge was removed not long after this photo. I wonder how many trains had crossed it.


Eastern Avenue

Eastern Avenue
Mile: 2.3 Date: Feb 2004
Ease: A View: W
Area: B- HCR: 64-G
Map: Ba 36 D 13 Topographic Maps

If you exit northbound I-95, then turn left, soon you will reach this CTN grade crossing. Note the side view of a railroad signal at right.


ETC Sign
Photo courtesy Dave Hiteshew

ETC Sign
Mile: 2.3 Date: 2021
Ease: A View: S
Area: B- HCR:
Map: Ba 44 D 1 Topographic Maps

No one seems to know the meaning of this ETC sign. Since we're several miles from the waterfront, this might be where trains leave control of a dispatcher. End Terminal Control?


Clark Distribution

Clark Distribution
Mile: 2.7 Date: Nov 2022
Ease: B+ View: S
Area: C+ HCR:
Map: Ba 36 D 13 Topographic Maps

This neatly maintained siding last saw rail cars during 2017, and is no longer connected to the main. Previously, it served Owens-Illinois Glass Company.


Near I-95

Near I-95
Mile: 2.7 Date: Nov 2022
Ease: B+ View: N
Area: C+ HCR:
Map: Ba 36 D 13 Topographic Maps

I-95 drivers might not realize CTN is below on the left.


North Point Boulevard
Photo courtesy Dave Hiteshew

North Point Boulevard
Mile: 3.0 Date: 2021
Ease: A- View: NE
Area: C+ HCR: 67
Map: Ba 36 E 12 Topographic Maps

A siding here had served Continental Can Company near the photog who is standing immediately outside Baltimore city limits.


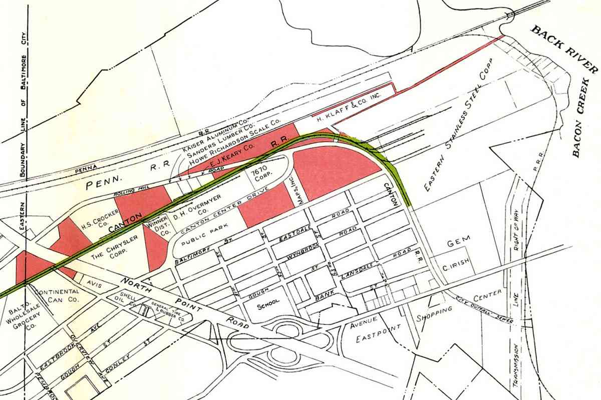
Customers 1970

Customers 1970
Mile: Date: 1970
Ease: A View: N (up)
Area: HCR: 67
Map: Ba 36 G 11 Topographic Maps

Between North Point Boulevard and Rolling Mill Road, there were sidings for H.S. Crocker Company, Winner Distribution, D.H. Overmyer, Kaiser Aluminum, Sanders Lumber, and 7670 Corporation.

The thin red stripe to Back River represents a path CTN retained for a never-built extension to meet Maryland & Pennsylvania RR in Towson. The white tongue under Klaff suggests CTN had not owned the connection between it and Pennsylvania Railroad that is described below.


Rolling Mill Road

Rolling Mill Road
Mile: 3.7 Date: Mar 2023
Ease: A View: W
Area: C+ HCR:
Map: Ba 36 F 12 Topographic Maps

A track curls right to follow Rolling Mill Road to Boise Cascade, and long-defunct Eastern Stainless Steel.

Links: 2013, 2014


Connection
Photo courtesy Johns Hopkins University

Connection
Mile: Date: 1926/1927
Ease: View: N (up)
Area: HCR:
Map: Ba 36 G 11 Topographic Maps

The thin \ diagonal at center is a sparsely-documented connection between Pennsylvania RR (RAIL at top) and CTN curving along bottom. It looks to me more of a connection between PRR and Eastern Stainless Steel (right), one that happens to approach CTN close enough to connect with it as well.

ST marks Baltimore Street. The dual frowning crescents belong to Rolling Mill Road and CTN.

The connection remains evident in a 1938 aerial, but not in one from 1953.


Dual Elevation

Dual Elevation
Mile: 4.1 Date: Mar 2023
Ease: A View: NW
Area: C+ HCR: 64-F
Map: Ba 36 G 11 Topographic Maps

The unusual difference in elevations near the Baltimore Street grade crossing is likely a relic of the PRR connection, which was the track on the right.

Link: 2023


End of the Line

End of the Line
Mile: 4.1 Date: Mar 2023
Ease: A View: SE
Area: C+ HCR:
Map: Ba 36 G 11 Topographic Maps

CTN and ex-PRR tracks end just out of view before reaching Eastern Avenue.


Extension

Extension
Mile: 4.1 Date: Nov 2018
Ease: A- View: W
Area: C+ HCR: 86
Map: Ba 36 H 11 Topographic Maps

Around year 2000, CTN extended a spur that wanders through the former Eastern Stainless Steel site to serve the building on the left.


Not Connected
Photo courtesy Google

Not Connected
Mile: Date: Nov 2019
Ease: View: N (up)
Area: HCR:
Map: Ba 36 H 11 Topographic Maps

CTN also continued east (right) past that building to come within 100 feet of Norfolk Southern's arc of track on the right to Sparrows Point. Aerial photos indicate a connection has not been made as of 2023.


<< Previous (west) | THIS PAGE: Canton east | End of tour || main index

This tour ends here! You may enjoy the nearby ex-PRR, NS Sparrows Point trackage.

For more tours here now, select from the map: clickable map

Or, return to main page

Copyright Notice